To arrange a Viewing Appointment please telephone BLACK HAY Estate Agents direct on 01292 283606.
Close* NEW to Market - Available to View Now * Offering excellent value/accommodation, this ever popular Two Bedroom Cottage Style Flat occupies elevated/upper position with the added benefit of the building having been re-roofed, whilst a valued private garden area is provided to the rear (exact details/boundaries/shared access to be confirmed from title deeds).
Of broad appeal, ranging from the 1st-time buyer seeking their 1st home, the retired/semi-retired purchaser wishing to downsize or the buy-to-let investor, this particular flat has been a comfortable home to its present owner who has carried out some modernisation.
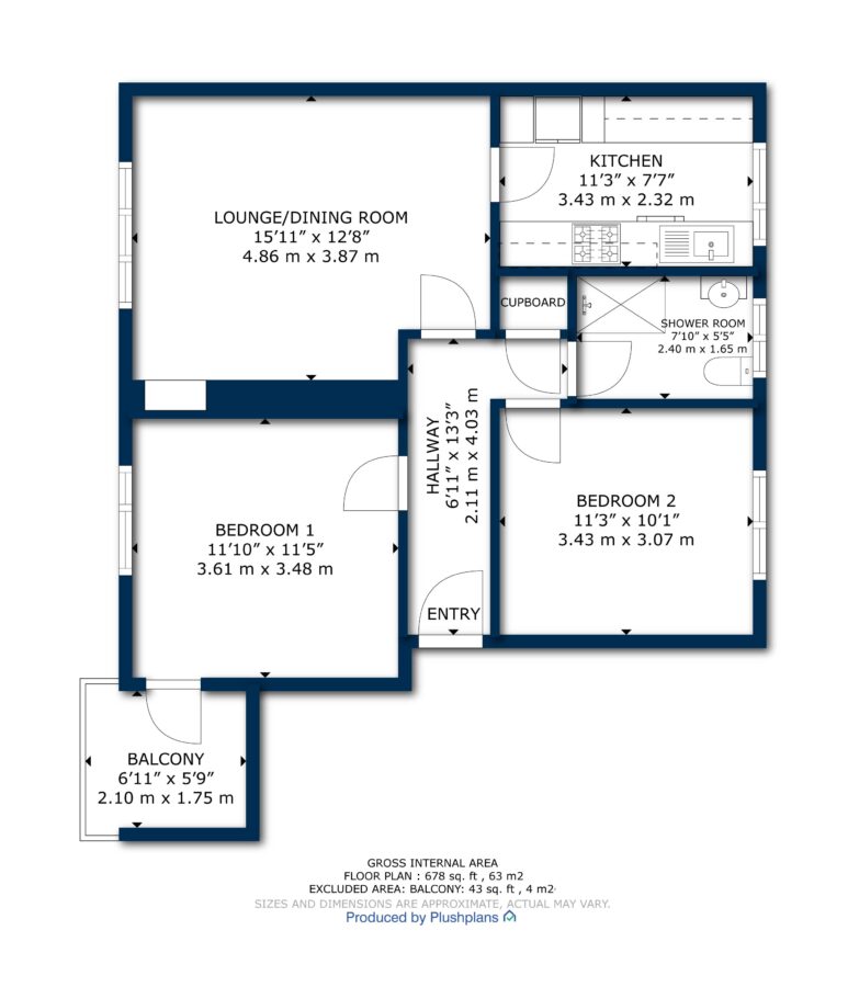
The accommodation comprises, reception hall, spacious lounge (with space for small table/chairs) to the front, separate kitchen to the rear, 2 bedrooms are positioned to the front (with small balcony off), & rear respectively whilst the bathroom (walk-in shower cubicle instead of bath) is off the hallway. The specification includes both gas central heating and double glazing. EPC – C. A private garden area to the rear is included. On-street parking is available.
The property is conveniently located for access to the nearby Heathfield Shopping Complex or Ayr/Prestwick Town Centres with their wide-ranging amenities. Public transport includes bus & train (within walking distance) whilst the A77 (and onto the A79) is a short car journey, providing excellent coastal links south & north together with direct commuting to Glasgow/beyond. Prestwick Airport is located on the edge of Prestwick Town, approx. 3 miles away. Ayr and Prestwick provide a sweeping sea/beach front/promenade, popular with both locals & visitors alike.
To discuss your interest in this particular property, please contact Graeme Lumsden, our Director/Valuer, who is handling this particular sale - 01292 283606. To enquire about Viewing please contact BLACK HAY ESTATE AGENTS on 01292 283606. The Home Report, Floorplan/Room Sizes & Virtual Tour are ALL available to view on our blackhay.co.uk website.
WELCOME TO BLACK HAY
Following Government Advice our Offices are now Temporarily Closed however we will be working remotely during Normal Office Hours. We can be contacted by phone….
Our SOLICITORS
AYR 01292 268988
PRESTWICK 01292 477235 (press Option 1)
Our ESTATE AGENCY 01292 283606
Or you can send an email using either our CONTACT US form here on our website or visit our ABOUT US Page where we have a list of individual email contacts.
We have been serving Our Clients since the 1930’s so we look forward to assisting you both now and in the future.
Close